Beschrijving

Nieuw in verhuur en tijdelijk beschikbaar vanaf 01-11-2025 t/m 31-03-2026, dit fraaie vrijstaande chalet op een ruime kavel van 210 m².

Het chalet is gelegen in een prachtig duingebied op recreatiepark “De Noordwijkse Duinen’’ wat onderdeel is van EuroParcs. Het park en de omgeving bieden voor elk wat wils; natuurgebieden, zee, strand en duinen en een diversiteit aan winkels, horeca en (outdoor) sportmogelijkheden maken de omgeving boeiend en aantrekkelijk. Op het park zijn diverse faciliteiten aanwezig zoals een receptie, parkshop, speeltuin en een buitenzwembad (enkel in het hoogseizoen geopend). De A4 en A44 richting Amsterdam/Schiphol, Haarlem, Leiden Den Haag alsmede de N206 zijn snel en goed bereikbaar.

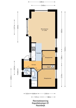
Indeling:
Entree, toilet met fontein, badkamer met douche, wastafelmeubel met spiegelkast en handdoekradiator. Hoofdslaapkamer met een vaste kastwand, hierin bevind zicht de CV ketel (2023). De 2e slaapkamer is voorzien van een stapelbed met vaste kast. Open keuken met inbouwapparatuur, te weten: 4-pits gaskookplaat, afzuigkap, een magnetron, koelkast, vriezer en vaatwasser. De sfeervolle woonkamer is heerlijk licht vanwege de vele raampartijen en schuifpui naar de tuin. Het chalet is voorzien van een laminaat vloer en kunststof kozijnen met dubbel glas. De woonkamer is voorzien van een airco. 

Tuin:
De fraai aangelegde tuin is op het zonnige zuidenwesten gelegen. De tuin heeft een zonneterras, groene borders en een vrijstaande houten berging. Naast de berging is er een parkeergelegenheid op eigen terrein.

Bijzonderheden: 	
- Beschikbaar vanaf 1 november, uiterlijk tot 31-03-2026;
- Huurprijs € 1.675 per maand;
- Huurprijs is inclusief internet en inclusief € 130 GWE kosten;
- Huurprijs is exclusief toeristenbelasting (ca. € 2,45 p.p.p.n.) en excl. eindschoonmaak (ca. € 175,00);
- Huurprijs is gebaseerd op 2 personen. Indien 3-4 personen wordt er een meerprijs berekend;
- Borg € 1.675;
- Inschrijven bij gemeente NIET mogelijk, daar er geen permanente bewoning op het adres mogelijk is;   
- Roken en huisdieren zijn niet toegestaan;
- Het chalet is voorzien van volledige inventaris en een wasmachine;
- Een tijdelijk contract zal opgesteld worden door EuroParcs;
- Huur- en gebruiksvoorwaarden van EuroParcs van toepassing.

Kenmerken