Algemeen
Nieuw in verhuur en tijdelijk beschikbaar vanaf 01-11-2025 t/m 31-03-2026, dit fraaie vrijstaande chalet op een ruime kavel van 210 m².
Het chalet is gelegen in een prachtig duingebied op recreatiepark “De Noordwijkse Duinen’’ wat onderdeel is van EuroParcs. Het park en de omgeving bieden voor elk wat wils; natuurgebieden, zee, strand en duinen en een diversiteit aan winkels, horeca en (outd... Meer informatie
Het chalet is gelegen in een prachtig duingebied op recreatiepark “De Noordwijkse Duinen’’ wat onderdeel is van EuroParcs. Het park en de omgeving bieden voor elk wat wils; natuurgebieden, zee, strand en duinen en een diversiteit aan winkels, horeca en (outd... Meer informatie
-
Kenmerken
Alle kenmerken Type object Woonhuis, bungalow, vrijstaande woning Bouwperiode 2004 Aangeboden sinds Donderdag 2 oktober 2025 Beschikbaar vanaf Zaterdag 1 november 2025 -
Locatie
Kenmerken
| Overdracht | |
|---|---|
| Referentienummer | 00954 |
| Huurprijs | € 1.675,- per maand (incl. servicekosten, incl. gas, incl. water, incl. elektriciteit, gemeubileerd, gestoffeerd) |
| Borg | € 1.675,- |
| Inrichting | Ja |
| Inrichting | Gemeubileerd |
| Aanvaarding | In overleg |
| Beschikbaar vanaf | Zaterdag 1 november 2025 |
| Beschikbaar tot | Dinsdag 31 maart 2026 |
| Aangeboden sinds | Donderdag 2 oktober 2025 |
| Bouw | |
|---|---|
| Type object | Woonhuis, bungalow, vrijstaande woning |
| Soort bouw | Bestaande bouw |
| Bouwperiode | 2004 |
| Dakbedekking | Dakpannen |
| Type dak | Zadeldak |
| Isolatievormen | Dubbel glas |
| Oppervlaktes en inhoud | |
|---|---|
| Perceeloppervlakte | 210 m² |
| Woonoppervlakte | 41 m² |
| Inhoud | 141 m³ |
| Indeling | |
|---|---|
| Aantal bouwlagen | 1 |
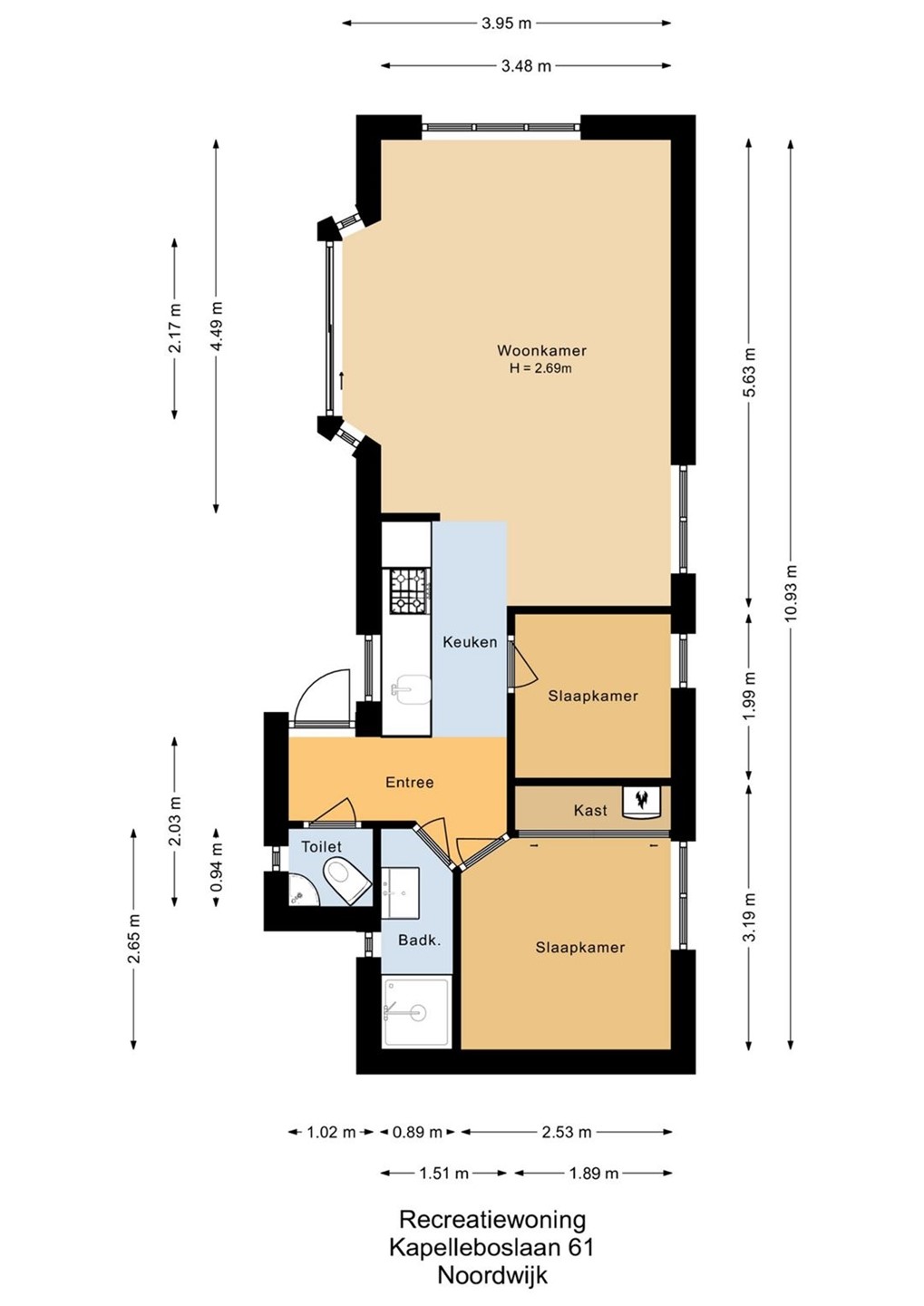
| Aantal kamers | 3 (waarvan 2 slaapkamers) |
| Aantal badkamers | 1 (en 1 apart toilet) |
| Locatie | |
|---|---|
| Ligging | Aan bosrand, Aan park, Aan rustige weg, Buiten bebouwde kom, In bosrijke omgeving |
| Tuin | |
|---|---|
| Type | Voortuin |
| CV ketel | |
|---|---|
| CV ketel | Remeha HR |
| Warmtebron | Gas |
| Bouwjaar | 2023 |
| Combiketel | Ja |
| Eigendom | Eigendom |
| Uitrusting | |
|---|---|
| Warm water | CV-ketel |
| Verwarmingssysteem | Centrale verwarming |
| Heeft airco | Ja |
| Heeft kabel-tv | Ja |
| Glasvezelaansluiting aanwezig | Ja |
| Tuin aanwezig | Ja |
| Heeft een schuifpui | Ja |
Beschrijving
Nieuw in verhuur en tijdelijk beschikbaar vanaf 01-11-2025 t/m 31-03-2026, dit fraaie vrijstaande chalet op een ruime kavel van 210 m².
Het chalet is gelegen in een prachtig duingebied op recreatiepark “De Noordwijkse Duinen’’ wat onderdeel is van EuroParcs. Het park en de omgeving bieden voor elk wat wils; natuurgebieden, zee, strand en duinen en een diversiteit aan winkels, horeca en (outdoor) sportmogelijkheden maken de omgeving boeiend en aantrekkelijk. Op het park zijn diverse faciliteiten aanwezig zoals een receptie, parkshop, speeltuin en een buitenzwembad (enkel in het hoogseizoen geopend). De A4 en A44 richting Amsterdam/Schiphol, Haarlem, Leiden Den Haag alsmede de N206 zijn snel en goed bereikbaar.
Indeling:
Entree, toilet met fontein, badkamer met douche, wastafelmeubel met spiegelkast en handdoekradiator. Hoofdslaapkamer met een vaste kastwand, hierin bevind zicht de CV ketel (2023). De 2e slaapkamer is voorzien van een stapelbed met vaste kast. Open keuken met inbouwapparatuur, te weten: 4-pits gaskookplaat, afzuigkap, een magnetron, koelkast, vriezer en vaatwasser. De sfeervolle woonkamer is heerlijk licht vanwege de vele raampartijen en schuifpui naar de tuin. Het chalet is voorzien van een laminaat vloer en kunststof kozijnen met dubbel glas. De woonkamer is voorzien van een airco.
Tuin:
De fraai aangelegde tuin is op het zonnige zuidenwesten gelegen. De tuin heeft een zonneterras, groene borders en een vrijstaande houten berging. Naast de berging is er een parkeergelegenheid op eigen terrein.
Bijzonderheden:
- Beschikbaar vanaf 1 november, uiterlijk tot 31-03-2026;
- Huurprijs € 1.675 per maand;
- Huurprijs is inclusief internet en inclusief € 130 GWE kosten;
- Huurprijs is exclusief toeristenbelasting (ca. € 2,45 p.p.p.n.) en excl. eindschoonmaak (ca. € 175,00);
- Huurprijs is gebaseerd op 2 personen. Indien 3-4 personen wordt er een meerprijs berekend;
- Borg € 1.675;
- Inschrijven bij gemeente NIET mogelijk, daar er geen permanente bewoning op het adres mogelijk is;
- Roken en huisdieren zijn niet toegestaan;
- Het chalet is voorzien van volledige inventaris en een wasmachine;
- Een tijdelijk contract zal opgesteld worden door EuroParcs;
- Huur- en gebruiksvoorwaarden van EuroParcs van toepassing.
Het chalet is gelegen in een prachtig duingebied op recreatiepark “De Noordwijkse Duinen’’ wat onderdeel is van EuroParcs. Het park en de omgeving bieden voor elk wat wils; natuurgebieden, zee, strand en duinen en een diversiteit aan winkels, horeca en (outdoor) sportmogelijkheden maken de omgeving boeiend en aantrekkelijk. Op het park zijn diverse faciliteiten aanwezig zoals een receptie, parkshop, speeltuin en een buitenzwembad (enkel in het hoogseizoen geopend). De A4 en A44 richting Amsterdam/Schiphol, Haarlem, Leiden Den Haag alsmede de N206 zijn snel en goed bereikbaar.
Indeling:
Entree, toilet met fontein, badkamer met douche, wastafelmeubel met spiegelkast en handdoekradiator. Hoofdslaapkamer met een vaste kastwand, hierin bevind zicht de CV ketel (2023). De 2e slaapkamer is voorzien van een stapelbed met vaste kast. Open keuken met inbouwapparatuur, te weten: 4-pits gaskookplaat, afzuigkap, een magnetron, koelkast, vriezer en vaatwasser. De sfeervolle woonkamer is heerlijk licht vanwege de vele raampartijen en schuifpui naar de tuin. Het chalet is voorzien van een laminaat vloer en kunststof kozijnen met dubbel glas. De woonkamer is voorzien van een airco.
Tuin:
De fraai aangelegde tuin is op het zonnige zuidenwesten gelegen. De tuin heeft een zonneterras, groene borders en een vrijstaande houten berging. Naast de berging is er een parkeergelegenheid op eigen terrein.
Bijzonderheden:
- Beschikbaar vanaf 1 november, uiterlijk tot 31-03-2026;
- Huurprijs € 1.675 per maand;
- Huurprijs is inclusief internet en inclusief € 130 GWE kosten;
- Huurprijs is exclusief toeristenbelasting (ca. € 2,45 p.p.p.n.) en excl. eindschoonmaak (ca. € 175,00);
- Huurprijs is gebaseerd op 2 personen. Indien 3-4 personen wordt er een meerprijs berekend;
- Borg € 1.675;
- Inschrijven bij gemeente NIET mogelijk, daar er geen permanente bewoning op het adres mogelijk is;
- Roken en huisdieren zijn niet toegestaan;
- Het chalet is voorzien van volledige inventaris en een wasmachine;
- Een tijdelijk contract zal opgesteld worden door EuroParcs;
- Huur- en gebruiksvoorwaarden van EuroParcs van toepassing.